48 Home St SW
Grand Rapids, MI 49507

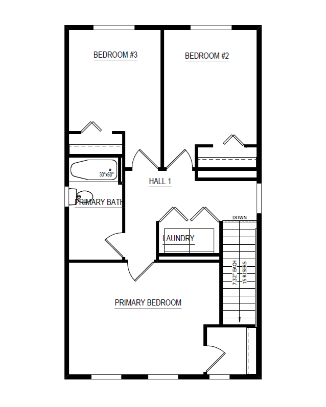
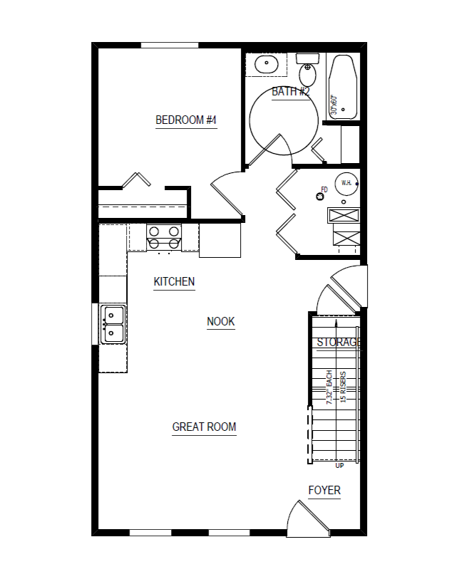
4 bed

2 bath

Sales Price: $204,000-$250,000

Two-story, Single-Family home. New build, expected to be completed in spring 2026. 4 bedrooms, 2 baths, open floor plan, stainless steel appliances, laundry, off-street parking

Interested in this home? Apply today!

Learn more about our Homeownership Program and how to apply

Actual sales price within this range based on buyer income resulting in an affordable housing payment, approximately 30% of monthly gross income. The maximum income of the prospective buyer must be at or below 80% Area Median Income (click here for more information and an income chart).

The income of all those residing at this address will be counted toward the household income qualification. Total amount cannot exceed 80% of the Area Median Income.

All homes are sold with an Affordability Covenant Deed Restriction, please contact us for more information.

New Build. Expected Completion: Winter, 2026

Type of Home
Single Family, 2-story

Square Feet
1,449 sq ft

Year built
2026

Appliances & Features
Stainless Steel Stove, Fridge, Dishwasher
Washer and Dryer
Carpeted Bedrooms
Luxury Vinyl Plank Flooring

Heat pump for heating & cooling and hot water

Energy Star certified and Indoor Air + certified

Parking
Off-street

School District
Grand Rapids School District

Neighborhood Amenities
Close to restaurants, grocery, parks, US-131, and schools

Floor Plans

Select one to explore:

Homeownership Eligibility

After you have found a home you are interested in and have reviewed our requirements, please take the Eligibility Quiz.  Once complete, a Habitat Kent specialist will reach out to you with next steps.